Appartamento Bilocale con Possibilità di Ristrutturazione a Barano d'Ischia
Rif: 243 - Mq: 100 - 200.000 € - Anno costruzione: 1967
Descrizione
In un incantevole angolo di Barano d'Ischia, nella zona di Valotiere, a due passi dalla rinomata spiaggia dei Maronti vi proponiamo in vendita un luminoso appartamento bilocale situato al primo ed ultimo piano. Questo immobile vanta una comoda entrata indipendente e si estende su una superficie totale di 100 mq, offrendo ampi spazi abitativi ideali per famiglie e coppie.
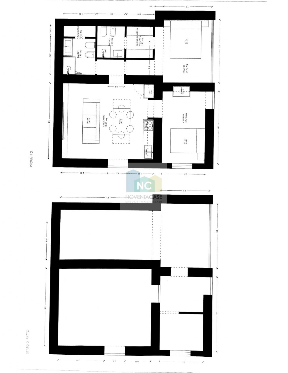
L'appartamento è composto da un ampio soggiorno con angolo cottura che gode di ottima illuminazione naturale grazie alle grandi finestre. Una spaziosa camera matrimoniale , un bagno.
Uno dei punti forti della proprietà è senza dubbio l’ampio terrazzo abitabile, dove potrete godervi piacevoli serate all'aperto o semplicemente rilassarvi sotto il sole dell'isola. Grazie alla generosa dimensione degli ambienti interni, avrete anche la possibilità di ristrutturare la disposizione interna: potete ridisegnare lo spazio ricavando due camere da letto e persino realizzare due bagni!
Le zero spese condominiali rendono questa offerta ancora più interessante dal punto di vista economico. Con le giuste modifiche interne, questo appartamento promette non solo un'accoglienza domestica calorosa ma rappresenta anche un eccellente investimento immobiliare sul mercato attuale.
Barano d'Ischia è nota per la sua bellezza paesaggistica mozzafiato e i suoi scorci pittoreschi; circondata dal mare cristallino del Golfo di Napoli e caratterizzata da splendidi sentieri naturalistici. Ottimamente collegata ai servizi principali come negozi, ristoranti tipici e spiagge affascinanti, a prescindere dall'utilizzo personale o come opzione strategica per locazioni turistiche future.
Non perdete l'opportunità unica! Contattateci oggi stesso presso la nostra agenzia per ulteriori informazioni o per prenotare una visita a questo straordinario appartamento.
Dettagli
- Categoria : Appartamento
- Contratto : Vendita
Ambienti
- Bagni : 1
- Camere : 1
- Soggiorno : 1
- Ripostigli : 1
- Soggiorno con angolo cottura : 1
- Terrazzi : 1
- Poggioli : 1
- Numero locali : 3
Livelli
- Primo piano : 1
- Ultimo piano : 1
- Totale piani : 2
- Piano numero : 1















